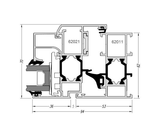
OPIS PRODUKTU
System izolowany przeznaczony do wykonywania zabudowy zewnętrznej: okiennej, drzwiowej, witrynowej. Możliwe jest wykonywanie drzwi przesuwnych, harmonijkowych i automatycznych, okien otwieranych zarówno do wewnątrz jak i na zewnątrz a także obrotowych i konstrukcje gięte. Dwa profile aluminiowe połączone zostały przekładką termiczną tworząc profil o szerokości ramy 62mm i 70 mm skrzydła okiennego. Szerokość profili i ich budowa zapewnia bardzo dobre parametry wytrzymałościowe i termiczne przy zachowaniu niskiej ceny systemu. Profile tłoczone są ze stopu EN AW-6060 wg PN-EN 573-3:2009. Tolerancje wymiarów i kształtu są zgodne z normą PN-EN 12020-2:2001.
DODATKOWE INFORMACJE
Prostokątne połączenia kształtowników uzyskuje się poprzez przycięcie profili pod kątem 45˚ i wsunięcie w komory profili 2 narożników, które można kołkować lub zagniatać. Połączenia poprzeczne wykonuje się za pomocą aluminiowych konektorów, które należy kołkować. Cechą charakterystyczną systemu jest jego ścisłe powiązanie z systemem nieizolowanym okienno-drzwiowym AZ-45 a także innymi systemami firmy Morad. Przyjęcie takiego założenia konstrukcyjnego pozwoliło uzyskać i zastosować wiele kompatybilnych elementów w tych systemach, np.: wspólnych listew przyszybowych, narożników, listew uszczelniających, uszczelek przyszybowych i przymykowych, wspólnych okuć i akcesoriów. Jednym z efektów unifikacji jest niemal identyczny wygląd zarówno zewnętrzny jak i wewnętrzny wykonanych wyrobów.
